
The safety of our guests and team members at Blue Marlin Cove is a top priority. We have provided the thousands of our faithful guest and staff alike with helpful guidelines and safety information provided by the World Health Organization (WHO), U.S. Centers for Disease Control and Prevention (CDC) and Bahamas Mistry of Health detailing how to identify COVID-19 symptoms and mitigate its transmission. We have also partnered with ChemTron, as our exclusive suppliers, to provide our properties with access to top industry-standard cleaning and disinfecting supplies and have made training available to support our facility and our staff and managed owned condos in achieving the highest standards of cleanliness, disinfection and hygiene.
Our mission is to make resort travel possible for all, and that becomes especially important during times of uncertainty. Our cancellation policies for direct bookings are among the most flexible in the hotel/resort industry, with hundreds of guests already who have found our facilities honoring no-fee cancellations.
We have enhanced our policies as follows:
For bookings made online at www.bluemarlincove.com using our booking platform, guests are advised to contact all Bahamas and US Authorities Directly to confirm all current and up to date Laws and Local Requirements directly Along with Blue Marlin Cove Policies. Please consult travel advisories and information made available by the World Health Organization, U.S. Centers for Disease Control and Prevention and the U.S. Department of State.
We will continue to closely monitor the situation and adapt our policies accordingly.
Additionally, due to the current situation with coronavirus, our staff are implementing new processes to protect the safety of our guests and team members. This may result in a reduction in certain services and amenities that are normally available at our resort. Those traveling to property and surrounding areas are asked and required to comply with all local guidelines and restrictions and may be required to provide identification establishing that they are “properly cleared travelers.” If guests have questions or concerns, we ask them to please contact the local Bahamas Government Agencies to obtain all proper and current information directly as our onsite and offsite teams cannot and will not confirm any rapidly changing guidelines which could cause a delay in you stay with us.
We thank you for your continued patience as we navigate with you to give you the best Island Time Trip!
With Prayers for A Better Tomorrow,
CEO/Blue Marlin Cove Resort & Marina
Please be advised upon check-in at the Resort all members of your party will be required to sign the RESORT/MARINA DISCLOSURE/WAIVER/RELEASE FORCOMMUNICABLE DISEASES INCLUDING COVID-19 ASSUMPTION OF RISK/WAIVER OF LIABILITY / INDEMNIFICATION AGREEMENT

The safety of our guests and team members at Blue Marlin Cove is a top priority. We have provided the thousands of our faithful guest and staff alike with helpful guidelines and safety information provided by the World Health Organization (WHO), U.S. Centers for Disease Control and Prevention (CDC) and Bahamas Mistry of Health detailing how to identify COVID-19 symptoms and mitigate its transmission. We have also partnered with ChemTron, as our exclusive suppliers, to provide our properties with access to top industry-standard cleaning and disinfecting supplies and have made training available to support our facility and our staff and managed owned condos in achieving the highest standards of cleanliness, disinfection and hygiene.
Our mission is to make resort travel possible for all, and that becomes especially important during times of uncertainty. Our cancellation policies for direct bookings are among the most flexible in the hotel/resort industry, with hundreds of guests already who have found our facilities honoring no-fee cancellations.
We have enhanced our policies as follows:
For bookings made online at www.bluemarlincove.com using our booking platform, guests are advised to contact all Bahamas and US Authorities Directly to confirm all current and up to date Laws and Local Requirements directly Along with Blue Marlin Cove Policies. Please consult travel advisories and information made available by the World Health Organization, U.S. Centers for Disease Control and Prevention and the U.S. Department of State.
We will continue to closely monitor the situation and adapt our policies accordingly.
Additionally, due to the current situation with coronavirus, our staff are implementing new processes to protect the safety of our guests and team members. This may result in a reduction in certain services and amenities that are normally available at our resort. Those traveling to property and surrounding areas are asked and required to comply with all local guidelines and restrictions and may be required to provide identification establishing that they are “properly cleared travelers.” If guests have questions or concerns, we ask them to please contact the local Bahamas Government Agencies to obtain all proper and current information directly as our onsite and offsite teams cannot and will not confirm any rapidly changing guidelines which could cause a delay in you stay with us.
We thank you for your continued patience as we navigate with you to give you the best Island Time Trip!
With Prayers for A Better Tomorrow,
CEO/Blue Marlin Cove Resort & Marina
Please be advised upon check-in at the Resort all members of your party will be required to sign the RESORT/MARINA DISCLOSURE/WAIVER/RELEASE FORCOMMUNICABLE DISEASES INCLUDING COVID-19 ASSUMPTION OF RISK/WAIVER OF LIABILITY / INDEMNIFICATION AGREEMENT
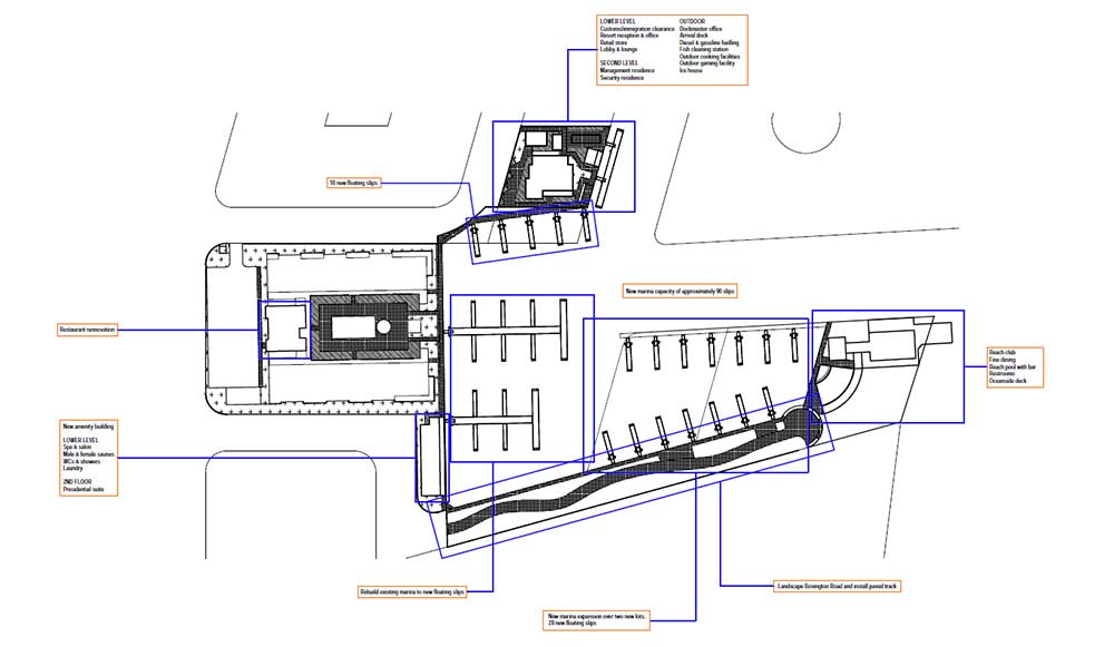
Blue Marlin Cove is a luxurious 30-unit, gated community located in the West End, Grand Bahama Island.
Blue Marina Cove Expansion BrochureWe’re just a short 63-mile cruise from Palm Beach, Florida, to the West End point-of-entry, located just three miles from Blue Marlin Cove. We’re also a 30-minute car ride from the Freeport Airport. You can leave home Friday morning and be fishing by Friday afternoon!
Enjoy the relaxing Grand Bahama Island including boating, fishing, snorkeling, shopping, or simply relax by the beautiful blue waters. By Monday, you’re back home, feeling as if you’ve had a good, long vacation – in just three short days!